Не нашли нужный товар? Позвоните или напишите нам и мы обязательно подберем для Вас решение.
Договор заключается в момент оплаты Покупателем товара ТОЛЬКО в ОФЛАЙН-МАГАЗИНЕ. Делая предварительный заказ, Покупатель заверяет, что ознакомился и согласен с Политикой компании, она ему ясна и понятна.Печь-камин Варвара Гармония 807-Н черный
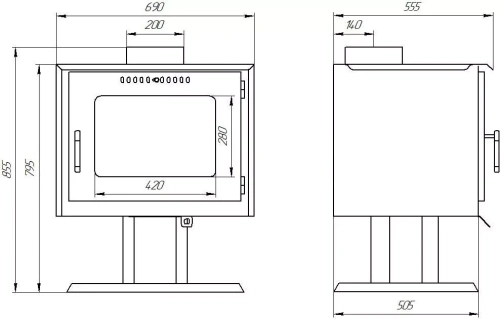
Конструкция печи
Печь камин гармония 807- Н является дровяным камином длительного горения, т.е. количество топок при правильной эксплуатации не будет превышать двух раз в сутки. Присутствие вторичного дожига в камине значительно увеличивает тепловую эффективность камина, также сокращая и расход топлива. В конструкции предусмотрена система чистое стекло.
Еще одним положительным качеством, является использование дров длиной до 520 мм.
Данная модель может работать в режиме длительного горения до 10 часов (при условии предварительно прогретой топки камина, полной закладки топки и установки минимального притока воздуха).
Особенности
Топка камина Варвара Гармония изготовлена из стали 3-4 мм, что обеспечивает более активный прогрев. Наружный кожух - металлический, препятствует жесткому излучению и позволяет быстро прогреть помещение за счет конвекции. Большое панорамное стекло, диагональю 500 мм, позволяет наблюдать за процессом горения практически из любой точки комнаты.
Объем отапливаемого помещения: до 200 м³.
Дымоход, огнезащита и комплектующие
Для печи необходим дымоход диаметром 200 мм. Его можно подобрать в разделе дымоходы. Рекомендуем обратить внимание, что первыми элементами от печи могут быть дымоходы черного цвета из котловой стали,которые можно подобрать в разделе дымоходы КПД
Не забудьте про огнезащиту стен.
Под печь необходимо предусмотреть негорючее основание. Рекомендуем использовать листы под печь черного цвета.
Также могут понадобиться важные мелочи.
|
Производитель
|
Варвара (Россия) |
|
Высота, мм
|
790 |
|
Глубина, мм
|
560 |
|
Ширина, мм
|
690 |
|
Диаметр дымохода, мм
|
200 |
|
Выход дымохода
|
сверху |
|
Вес, кг
|
114 |
|
Материал облицовки (корпуса)
|
сталь |
|
Материал печи (топки)
|
сталь |
|
Исполнение
|
На ноге |
|
Отапливаемый объем
|
до 200 м3 |
Отправляем продукцию по всей территории РФ.
Ознакомиться с условиями оплаты и получения товара Вы можете на странице «Доставка и оплата».
* Рассчитывается ориентировочная стоимость доставки от ПВЗ города отправления до ПВЗ города получения.
Конечная стоимость определяется после приема груза на терминале компании и зависит от точных габаритов сборки (длина*ширина*высота, вес), типа груза (наименование товара во вложении), вида отгрузки (отгрузка курьеру или в ПВЗ), хрупкости вложения, выбора услуги страхования груза, наличия обязательной обрешетки и дополнительной упаковки, согласно условий и требований к перевозке грузов конкретной ТК.
Вы можете воспользоваться услугами монтажа купленных у нас товаров. Для этого при оформлении заказа на сайте в поле «Нужен монтаж» нужно выбрать пункт «Да».
Также по вопросам монтажа Вы можете проконсультироваться по указанным на сайте телефонам или отправить запрос через любую из расположенных на сайте форм обратной связи.
- Можно доверять! Компания «КПД» работает с 2004 года.
- Работаем только с проверенными бригадами монтажников.
- Произведем расчет и установку любого оборудования из наших магазинов.
- Гарантируем качество выполненных работ.
- Примеры наших работ (смотреть).


